最近一段時間碰到很多人問鈦合金材料深孔加工一系列問題。尤其很多公司用的深孔加工設備無法配套,之前我們公司機床上配套刀桿外徑為Φ38,加工時零件總長度必須在750——1500,所以,根本無法實現管子直徑的深孔加工要求,正好遇到的這個難題就交給了我們。

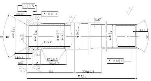
圖1零件結構圖
一、加工技術難點分析
首先我們來看這個工件的加工難點,這個零件的外圓尺寸和技術條件要求都非常嚴格,難加工的地方主要是為薄壁零件的深孔加工,而且還使用了難加工的鈦合金材料:Tc6。
在工藝上規定加工的深孔長度為1170(為兩個零件的長度),長徑比為1170∶38,表面粗糙度為Ra0.5。由于零件的材料特殊,深孔直徑尺寸規格與機床系統又不匹配,導致零件的深孔加工極為困難。
二、制定具體的措施
確定加工方案
所以我們先對機床配套刀桿的定位系統結構加以改制,設計與零件配套的定位密封結構,在滿足刀桿的設計要求下,制定刀具結構尺寸,為此我們先后設計制造(9種)專用深孔刀具、鏜頭和刀桿等工裝及設備配套零部件。
專用工裝的設計
由于確定了深孔的加工設備(深孔鉆鏜床T2120),在刀桿的設計結構上必須與機床切削及密封系統相配套。鈦合金管子的深孔內徑尺寸為Ф40,因此在刀桿內、外徑尺寸的設計結構上受到一定的限制。
一方面刀桿外徑尺寸不能過大,導致深孔加工時高壓油的流入量減少,產生壓力不足,影響深孔加工的刀桿內排屑功能。易產生切屑堵塞刀桿現象。
另一方面設計刀桿時,還要兼顧到刀桿的最大內徑尺寸,必須做到刀桿內、外徑尺寸相匹配,保證刀桿頭部連接處矩形螺紋的牢固可靠,刀桿具有足夠的剛性,同時還要滿足并實現深孔加工設備(T2120深孔鉆鏜床)內排屑功能,保證在高壓油的作用下使切屑順利的沿刀桿內孔行腔排入鐵屑箱內。
密封結構
即選定設計密封過渡轉接套結構,實現零件與機床接觸面的密封功能,解決連接處順利過渡,使零件與刀具形成封閉的空間,在深孔切削加工時,形成封閉的高壓循環系統,防止高壓油外泄,實現機床在深孔加工時冷卻和排屑、潤滑等功能。

圖2深孔鉆、擴孔和深孔鉸孔結構
加工出首件鈦合金管子深孔表面沒想到出現如下問題:內孔直徑尺寸局部超差,表面粗糙度不好,內孔表面有溝痕現象。
經過分析,我們發現浮動鉸刀的過渡轉接處尺寸為上限,鉸刀引導端切削受力不均,生產浮動刀片偏移,導致內孔直徑尺寸超出圖紙要求。另外內孔溝痕的產生原因是由于管壁較薄,深孔過長,鉸孔加工時產生振刀和擠刀后,易產生這一現象,此外鉸刀磨損后也會產生上述問題。
針對這些問題的產生原因,我們增加了在加工前檢查鉸刀的實際尺寸,以及浮動鉸刀引導端的定心作用,確保鉸刀的自動定心后,進行鉸削,同時檢查刀具磨損情況,及時更換新刀。這樣在以后的加工中保證了深孔加工的尺寸,終于完成了首件鈦合金管子深孔加工任務,解決鈦合金管子的深孔加工技術關鍵。




